Giới thiệu và ứng dụng sản phẩm
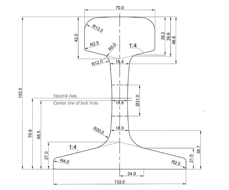
Đường sắt nặng 50kg/m thuộc loại đường ray hạng nặng, không phải đường ray nhẹ. Chiều cao của đường ray nặng 50kg/m là 152mm, chiều rộng dưới cùng là 132mm, chiều rộng đầu là 70mm và độ dày eo là 15,5mm.
Chiều dài đường ray tiêu chuẩn là 12,5 mét và 25 mét, và tùy chỉnh được hỗ trợ.

U71MN và các vật liệu khác thường được sử dụng. Thép này có độ bền cao, độ bền và khả năng chống mài mòn, và có thể chịu được áp lực và tác động lớn của tàu. Độ bền kéo lớn hơn hoặc bằng 880MPa, cường độ năng suất lớn hơn hoặc bằng 440MPa, độ giãn dài lớn hơn hoặc bằng 10%.
Nó chủ yếu được sử dụng trong các tuyến đường sắt, các tuyến, nhà máy và mỏ chuyên dụng, v.v., để mang xe hạng nặng và vận chuyển hàng hóa. Trong một số nhà máy lớn, mỏ, cảng và các nơi khác, đường ray hạng nặng 50kg/m có thể đáp ứng nhu cầu vận chuyển nặng và đảm bảo an toàn và hiệu quả của vận chuyển đường sắt.
Thông số kỹ thuật sản phẩm

Bao bì sản phẩm và giao hàng

Giới thiệu công ty

Được thành lập vào năm 2008, Gnee Rail là một công ty nước ngoài chuyên về kinh doanh nhập khẩu thép. Chúng tôi cam kết cung cấp các sản phẩm thép chất lượng cao và đầy đủ các giải pháp dịch vụ cho khách hàng trên toàn thế giới. Với nhiều năm kinh nghiệm trong ngành, một hệ thống chuỗi cung ứng hoàn chỉnh và một nhóm dịch vụ chuyên nghiệp, chúng tôi đã thiết lập mối quan hệ hợp tác lâu dài và ổn định với khách hàng ở nhiều quốc gia và khu vực. Giá trị cốt lõi của chúng tôi là chất lượng đầu tiên và sự hài lòng của khách hàng. Bằng cách liên tục tối ưu hóa các kênh mua sắm, kiểm soát nghiêm ngặt chất lượng sản phẩm và cải thiện hiệu quả hậu cần, chúng tôi đảm bảo rằng mọi khách hàng có thể có được trải nghiệm sản phẩm và dịch vụ tốt nhất.
Chú phổ biến: Đường sắt nhẹ theo dõi 50kg/m Đường sắt hạng nặng, Nhà máy đường sắt nhẹ Trung Quốc theo dõi 50kg/m Nhà sản xuất đường sắt hạng nặng, nhà cung cấp, nhà máy





